本文へスキップ

カタヤマハウジング株式会社は、大阪府茨木市の会社です。新築一戸建て・注文建築・建替え・中古一戸建て・中古マンション・収益マンション・収益ビルデングを取り扱っております。

TEL. 072-657-1151

〒567-0852 大阪府茨木市小柳町1番34号

特選物件情報   南向き   

<  リノベーション中古マンション>  

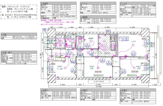
全面改装 仕様書





ペット飼育可、サイズ、頭数制限有
交通/JR総持寺駅 徒歩14分 阪急総持寺駅 徒歩19分
所在地:茨木市東太田1丁目 サニーハウス茨木 2階部分
建物専有面積71.87㎡(壁芯) バルコニー面積8.35㎥。
市街化区域:準工業地域 物件価額(税込)   28,800,000円
地域 準防火地域
駐車場/空き無し(区分所有者以外利用不可) 管理費   6700円
公営水道、都市ガス、公共下水。 修繕積立金   9500円
管理人/日勤 月火水金土勤務 国土法届出 不要
管理会社/日本ハウズイング株式会社 現況 空き家
地上8階建て/2階部分    学校区/西河原小学校 三島中学校  事業主/カタヤマハウジング株式会社
販売仲介/東急リバブル 高槻センター
リフォーム内容(2025年9月)
床めくり、フローリング張り替え新調
建具、建具枠全交換新調
間取り変更、収納クローゼット位置変更新調
ユニットバス、浴室換気乾燥暖房機付き新調
洗面台、洗濯パン、換気扇新調
トイレ交換、換気扇新調
キッチン壁付けから対面式ペニンシュラへ食器洗い乾燥機タッチセンサーカラン新調
クロス全室張り替え
全窓に内窓取り付け
給湯器交換新調
インターホン新調
下駄箱新調
分電盤新調
コンセント、スイッチ類変更

バナースペース

カタヤマハウジング株式会社

〒567-0852
大阪府茨木市小柳町1番34号

TEL 072-657-1151
FAX 072-657-1152